Каталог

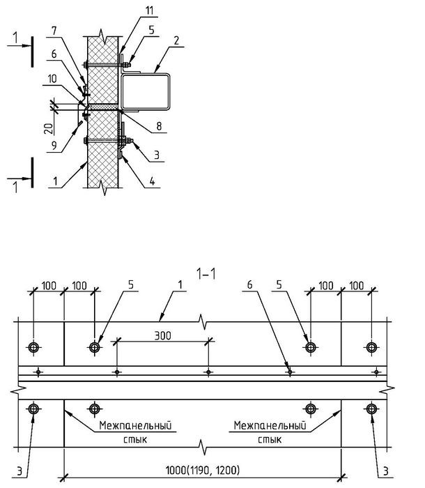
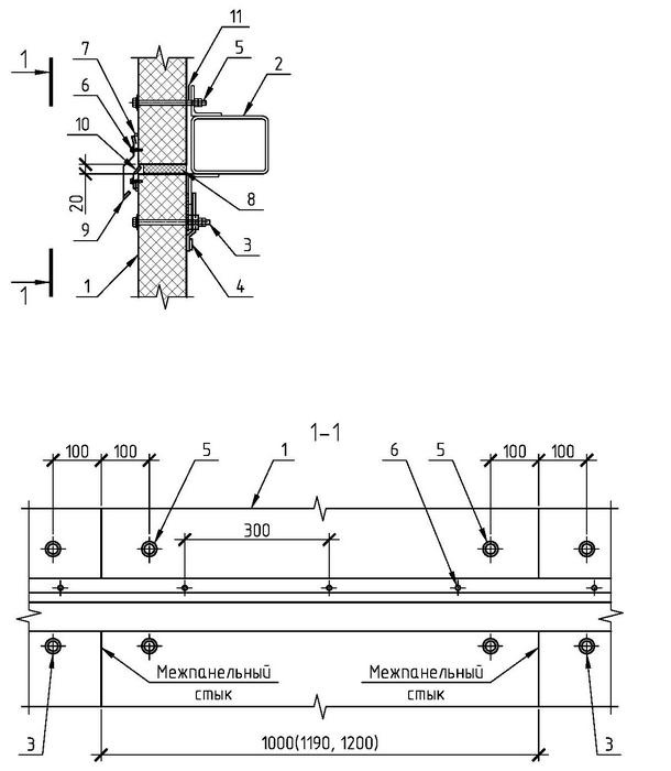
5.6 Стык средних ярусов панелей (кроме стыка 1-го и 2-го яруса). Трёхъярусное и более расположение панелей

1 - Панель стеновая НЗСП
2 - Ригель стыковой РС
3 - Комплект деталей КД2 для крепления панелей к ригелям
4 - Опорная накладка МС2 для крепления панелей к ригелям
5 - Комплект деталей КД1 для крепления панелей к ригелям
6 - Винт самонарезающий 4,8х19 (шаг 300мм)
7 - Герметик для наружных работ
8 - Утеплитель (минвата)
9 - Фасонный элемент НФС3
10 - Фасонный элемент НФС4
11 - Лента самоклеящаяся уплотнительная

Рассчитайте стоимость и получите коммерческое предложение
Заполнить заявку