Каталог

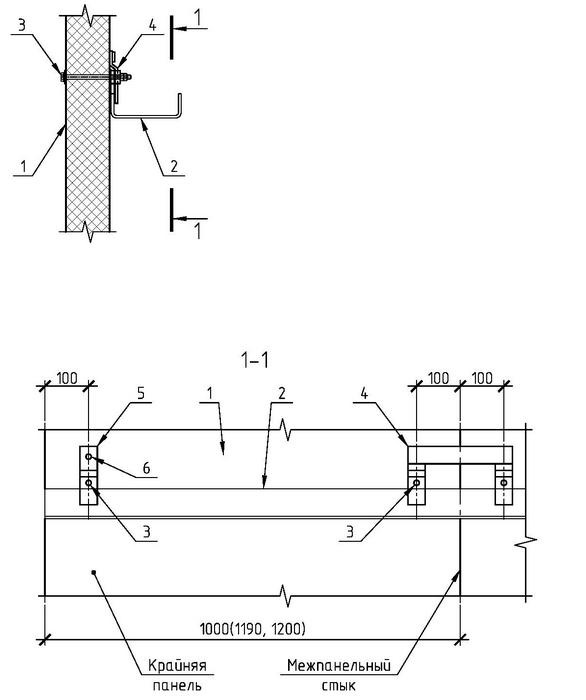
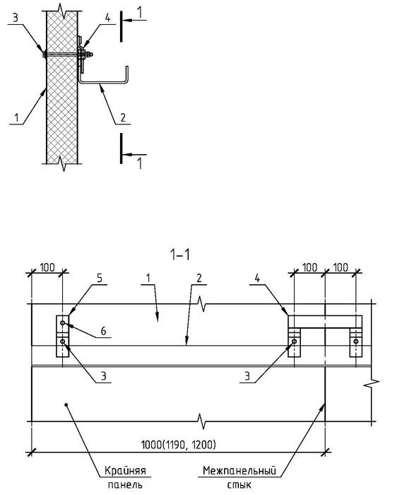
5.2 Промежуточное крепление панели

1 - Панель стеновая НЗСП
2 - Ригель рядовой РР
3 - Комплект деталей КД2 для крепления панелей к ригелям
4 - Опорная накладка МС2 для крепления панелей к ригелям
5 - Опорная накладка МС3 для крепления крайних панелей к ригелям
6 - Комплект деталей КД1 для крепления панелей к ригелям

Рассчитайте стоимость и получите коммерческое предложение
Заполнить заявку